Trilocale in vendita

Caivano, Via Fratelli Cervi
€ 175.000
3 locali 3 locali
110 Mq 110 Mq
2 bagni 2 bagni

Trilocale in vendita

Caivano, Via Fratelli Cervi

Descrizione annuncio

Appartamento Ristrutturato di 90mq in Zona Residenziale – Luminosissimo, Funzionale e dal Comfort Moderno!

- una zona residenziale tranquilla, servita e caratterizzata da ottimo contesto abitativo, proponiamo in vendita un appartamento ristrutturato di 90 mq, curato nei dettagli e progettato per garantire spazi comodi e vivibili per tutta la famiglia.

DESCRIZIONE DETTAGLIATA DELL’IMMOBILE

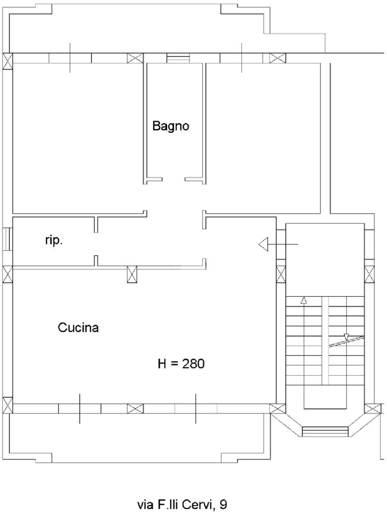
-Ampia Zona Living Open Space con Balcone
L’ingresso si apre su un ambiente unico cucina–salone, spazioso e perfettamente illuminato dalla grande apertura che conduce al balcone a livello.
Questo spazio, grazie alla disposizione moderna, permette di organizzare una zona conversazione, un’area pranzo e una cucina funzionale, mantenendo un’atmosfera accogliente e conviviale.
Il balcone rappresenta un prolungamento naturale della zona giorno, ideale per colazioni all’aperto, piante o piccoli momenti di relax.

DOPPI SERVIZI BEN ORGANIZZATI

-Primo Bagno Cieco con Doccia
Situato in posizione comoda e discreta, è stato progettato come bagno di servizio con doccia moderna, perfetto anche per uso quotidiano grazie alla sua praticità.

-Secondo Bagno con Finestra e vasca
Un bagno luminoso e dotato di finestra, rifinito con materiali moderni e provvisto di una comoda doccia, ideale come bagno principale della casa.

ZONA NOTTE LUMINOSA E BEN DISTRIBUITA

-Cameretta con Accesso al Balcone
Ambiente versatile, perfetto come camera per bambini, studio o stanza ospiti, resa particolarmente luminosa dall’accesso diretto al balcone condiviso.

-Camera da Letto Matrimoniale con Balcone
Spaziosa, confortevole e ben illuminata, gode anch’essa dell’uscita sul balcone, garantendo aria e luce per tutto il giorno.
La presenza del balcone collegato alla zona notte rappresenta un grande valore aggiunto, offrendo uno spazio esterno privato e funzionale.


POSTO AUTO RISERVATO

-A completare l’appartamento un comodo posto auto, fondamentale in zona residenziale e molto apprezzato per praticità e sicurezza.

PUNTI DI FORZA PRINCIPALI
-Ristrutturazione recente e moderna
-Ambienti ampi e ben distribuiti


-Ottima luminosità naturale grazie ai due balconi


- Zona giorno open space accogliente e funzionale

- Doppio bagno (cieco con doccia + finestrato con doccia)


- Zona notte con accesso diretto al balcone


- Contesto residenziale tranquillo e ben servito


-Prezzo estremamente competitivo per la metratura e lo stato dell’immobile

Per ulteriori informazioni o per fissare una visita, contattaci: un appartamento così completo, moderno e luminoso rappresenta una vera occasione da non perdere!

Mostra tutto

Nelle vicinanze

Scuole Scuole
Scuola Papa Giovanni
810 m
Scuola Milani
1,3 Km
Succursale I.S.I. Francesco Morano
1,6 Km
I.S.I. Francesco Morano
1,7 Km
Liceo Artistico
2,1 Km
Farmacia Farmacia
Farmacia
740 m
Supermercati Supermercati
MD
2,1 Km
Negozi Negozi
Il Mercatone
2,8 Km
Bar Bar
Bar delle rose
650 m
Bar Azzurro
870 m
Bar Beauty Drink
1,6 Km
Ristoranti Ristoranti
Palazzo Marchesale
580 m
Mostra tutto

Caratteristiche

Rif.:
61150709
Piano:
1 di 3 (Piano rialzato)
Balconi:
2
Camere da letto:
2
Arredamento:
Assente
Condizionamento:
Autonomo
Mostra tutto
Prezzo Prezzo
€ 175.000
Rata mutuo Rata mutuo
€ 826 / mese
Spese annue Spese annue
€ 60
Proponi il tuo prezzoProponi il tuo prezzo

Classe Energetica

G
G
G
G
G
G
G
G
G
Anno di costruzione:
1980
Riscaldamento:
Autonomo
Tipo impianto:
Ad aria
Tipo alimentazione:
Metano

Ti interessa visionare l'immobile?

Fissa un appuntamento  Fissa un appuntamento

Richiedi informazioni

Clicca su Leggi per aprire l'informativa
* Questi campi sono obbligatori

Calcola il tuo mutuo

Semplice e senza impegno
Anticipo

( % )
Mutuo

( % )

pochi semplici passi

inserisci i tuoi dati
Questionario completato
Grazie per aver richiesto un appuntamento senza impegno con un nostro Consulente del Credito e Assicurativo.

Hai inserito correttamente tutti i dati necessari e a breve riceverai una e-mail con un link da convalidare per inviare i tuoi dati.
Affiliato
Tecnoimmobiliare 3 Sas
Corso Umberto I, 356 80023 Caivano (NA)

Il nostro staff


  • Sergio Flores
    Affiliato

  • Carlo Della Coletta
    Responsabile

  • Emilia Massa
    Collaboratrice

  • Antonio Angerosa
    Collaboratore

  • Alessandra Venuso
    Collaboratrice
Corso Umberto I, 356 80023 Caivano (NA)
Zona: Caivano
Mostra su mappa
Orari: dal lunedì al venerdì 09:00-13:00 / 14:00-18:00; sabato chiusura alle 18:00
Affiliato
Tecnoimmobiliare 3 Sas
Corso Umberto I, 356 80023 Caivano (NA)

2025 Tecnocasa Franchising S.p.A. - P. IVA 08365160152 - Via Monte Bianco 60/A 20089 Rozzano (MI). Ogni agenzia ha un proprio titolare ed è autonoma. Privacy policy | Policy utilizzo | Cookie policy