Villa singola in vendita

Caivano, Via delle rose
€ 400.000
4 locali 4 locali
247 Mq 247 Mq
4 bagni 4 bagni

Villa singola in vendita

Caivano, Via delle rose

Descrizione annuncio

Nel comune di Caivano, in contesto riservato e residenziale, proponiamo in vendita una splendida soluzione indipendente di ampia quadratura, ideale per chi desidera spazio, privacy e comodità senza rinunciare alla vicinanza ai principali servizi.

Superficie interna di 170 mq, distribuita in modo funzionale e armonioso su più livelli, pensata per offrire ambienti ampi, luminosi e ben organizzati.

Spazi Esterni e Accessori
Giardino privato di 70 mq, perfetto per momenti di relax, cene all’aperto, area giochi per bambini o per chi ama vivere gli spazi esterni in totale tranquillità.
Garage di 70 mq, con capienza comoda per due auto, oltre a spazio aggiuntivo per deposito o area hobby.
Studio riservato, ideale per chi lavora da casa o desidera un ambiente dedicato alla lettura o allo smart working.
Cantina sottostante.

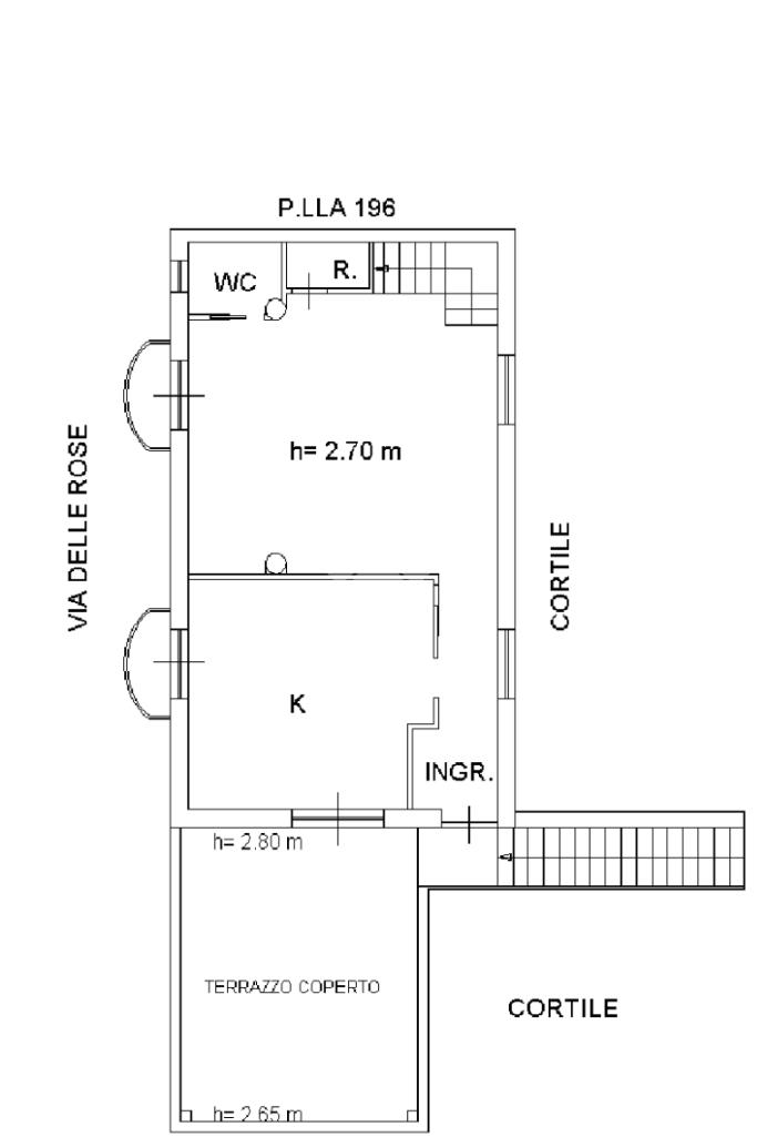
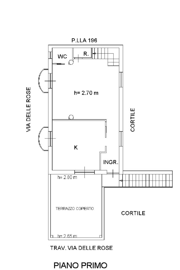
Distribuzione Interna

Piano principale:
• Ampia e luminosa cucina-salone open space, cuore della casa, perfetta per accogliere famiglia e amici.
• Bagno di servizio.
• Comodo sottoscala ad uso ripostiglio.
• Balconi con affaccio sia interno che su strada, che garantiscono ottima luminosità e doppia esposizione.

Piano superiore:
• Spaziosa camera da letto matrimoniale.
• Accogliente cameretta.
• Due bagni, funzionali e ben rifiniti.
• Balcone con affaccio arioso e doppia esposizione.

Condizioni e Contesto

L’immobile si presenta in ottime condizioni interne, pronto da abitare, curato nei dettagli e ben mantenuto.
La zona è tranquilla, lontana dal caos ma ben collegata, ideale per famiglie e per chi cerca serenità quotidiana in un contesto abitativo signorile

La soluzione perfetta per chi sogna una casa indipendente, con ampi spazi interni ed esterni, garage doppio e ambienti versatili, in una delle zone più richieste di Caivano.

Una casa che non è solo un immobile, ma uno stile di vita.

Contattaci per maggiori informazioni e per fissare una visita.
Opportunità come questa sono rare!

Mostra tutto

Nelle vicinanze

Scuole Scuole
Scuola Papa Giovanni
600 m
Scuola Milani
1,0 Km
Succursale I.S.I. Francesco Morano
1,4 Km
I.S.I. Francesco Morano
1,5 Km
Liceo Artistico
1,9 Km
Farmacia Farmacia
Farmacia
530 m
Supermercati Supermercati
MD
1,9 Km
Negozi Negozi
Il Mercatone
2,5 Km
Bar Bar
Bar delle rose
400 m
Bar Azzurro
660 m
Bar Beauty Drink
1,4 Km
Ristoranti Ristoranti
Palazzo Marchesale
770 m
Mostra tutto

Caratteristiche

Rif.:
61181570
Piano:
3 di 2 (Piano su più livelli)
Box:
1
Posti auto:
2
Balconi:
2
Terrazzi:
1
Mostra tutto
Prezzo Prezzo
€ 400.000
Rata mutuo Rata mutuo
€ 1.885 / mese
Spese annue Spese annue
€ 0
Proponi il tuo prezzoProponi il tuo prezzo

Classe Energetica

G
G
G
G
G
G
G
G
G
Anno di costruzione:
2015
Riscaldamento:
Autonomo
Tipo impianto:
Ad aria
Tipo alimentazione:
Metano

Ti interessa visionare l'immobile?

Fissa un appuntamento  Fissa un appuntamento

Richiedi informazioni

Clicca su Leggi per aprire l'informativa
* Questi campi sono obbligatori

Calcola il tuo mutuo

Semplice e senza impegno
Anticipo

( % )
Mutuo

( % )

pochi semplici passi

inserisci i tuoi dati
Questionario completato
Grazie per aver richiesto un appuntamento senza impegno con un nostro Consulente del Credito e Assicurativo.

Hai inserito correttamente tutti i dati necessari e a breve riceverai una e-mail con un link da convalidare per inviare i tuoi dati.
Affiliato
Tecnoimmobiliare 3 Sas
Corso Umberto I, 356 80023 Caivano (NA)

Il nostro staff


  • Sergio Flores
    Affiliato

  • Carlo Della Coletta
    Responsabile

  • Emilia Massa
    Collaboratrice

  • Alessandra Venuso
    Collaboratrice
Corso Umberto I, 356 80023 Caivano (NA)
Zona: Caivano
Mostra su mappa
Orari: dal lunedì al venerdì 09:00-13:00 / 14:00-18:00; sabato chiusura alle 18:00
Affiliato
Tecnoimmobiliare 3 Sas
Corso Umberto I, 356 80023 Caivano (NA)

2026 Tecnocasa Franchising S.p.A. - P. IVA 08365160152 - Via Monte Bianco 60/A 20089 Rozzano (MI). Ogni agenzia ha un proprio titolare ed è autonoma. Privacy policy | Policy utilizzo | Cookie policy